Jeonpo Renovation
- 우예진
- 2025년 12월 29일
- 3분 분량
전포동 리노베이션
정윤경 @1001.com_ , 정효경 @hyokyeoung.j / 건축설계스튜디오 Ⅴ

전포동 상업화로 사라진 공공성을 회복하기 위해, 건물 일부를 비워 '선형 광장'을 도입하는 리노베이션 전략을 제안한다.
Introduction
위치 : 부산 부산진구 전포동 673-1, 전자전기도매상가
용도 : 판매시설
층수: 지상 3층
---------------------------------------------------------------------------------------------
"Architecture without Architects" Research
<research type>
답사를 통해 사전에 선정한 리서치 장소 후보인 범일동, 전포동, 감천문화마을 세 곳에서 상업적 건축가 없는 건축 사례를 각각 50개, 68개, 20개 발견하고 기록하였다. 그리고 그것을 형태 와 기능에 따라 공통점을 찾고, 위와 같이 6가지 유형으로 분류하고 분석하였다.
<value analysis diagram>
'건축가 없는 건축'은 상업 환경의 빠른 변화에 유연하게 대응하는 건축적 가변성을 지니며, 규칙 없는 입면 변화로 보행자에게 시각적 즐거움을 주는 도시적 가치를 제공한다 . 또한 건물과 가로 사이의 경계를 허물어 사람들의 체류와 소통을 이끄는 사회적 활력을 증대시키고, 외부 차양을 통한 65%의 에너지 절감 및 경량철골조를 활용한 획기적인 탄소 저감이라는 환경적 가치를 동시에 실현한다 . 이러한 자생적 가치는 전포동이 기후 위기 시대에 지속 가능한 활력을 갖춘 도시로 재편되는 데 중요한 밑거름이 될 것이다.
The Solution We Found Out

리서치 과정에서 '건축가 없는 건축'을 아카이빙하며 건축적•환경적 가치를 발견했다. 이러한 건축물들은 환기와 시선을 유도하며, 내부와 외부 사이의 중간 영역을 창출하여 비일상적인 즐거움을 제공한다. 사람들은 이러한 공간에서 내부보다 가볍게 머물 수 있는 체류 경험을 누리게 되며, 이는 상업적 공간에서도 중요한 역할을 한다. 환경적인 측면에서는 가벼운 재료의 사용으로 공사 기간이 단축되고 탄소 배출이 줄어들며, 유지보수가 용이한다는 장점이 있다. 특히, 리서치 과정에서 자주 나타난 외부 차양은 내부 차양보다 5배 이상 우수한 일사 차단 효과를 지녀 에너지 절약에 효과적이다.
상업의 '건축가 없는 건축'을 주제로 한 리서치는 도시 전체로 시야를 확장하며, 전포동의 문제점을 분석하고 그에 대한 해결방안을 마스터플랜으로 제시하는 방식으로 마무리된다. 이후 설계 방향은 이러한 도시의 문제점을 보완하면서도 '건축가 없는 건축'의 가치를 계승하는 전략을 수립하는 데 있다.
Keywords

<research keywords>
앞서 언급한 리서치를 바탕으로 시선을 도시 전체로 확장한다. 공공영역 부재, 소비 중심 획일화된 프로그램, 건축가 없는 건축의 가치라는 전포동 핵심 키워드를 가지고, 각각의 전략으로 발전시킨다.
Site

전포동은 상업적 요구에 따라 자연발생적으로 형성된 ‘건축가 없는 건축’이 반복되며, 저층부에 상업 프로그램이 과도하게 집중되고 공공 영역은 점차 소멸되고 있다. 이로 인해 도시는 소비 중심의 획일적인 구조로 고착되며, 다양한 사회적 층위가 공존하지 못한 채 외부 충격에 취약한 상태에 놓여 있다.
<site>
그중 사이트는 상업이 활발한 지대 내의 저활력 공구상가로 상업화가 진행되고 있는 중인 곳이다. 상업이 들어오고 있는 중에 공공을 개입한다면 효과적인 전략이 될 수 있을 것이라는 기대를 가진다.

Strategy

설계 전략은 사이트의 저층부에 존재하는 기존의 상업 활력을 유지하되, 공공성을 개입시켜 도시 구조의 한계를 보완하는 것이다.
기존의 건물에서 보이드로 비워낸 '선형 광장'을 만든다. 중앙집중형 광장보다 접촉면적이 넓어 사용성이 높으며, 소비 성향이 강한 기존의 상업 프로그램으로 이루어진 저층부에는 이 광장이 적극 사용되도록 사잇길을 추가한다. 또한 증축을 통해 다양한 공공 프로그램을 넣어, 보이드로 인한 부족한 밀도를 다시 채워준다.
Design
1) 저활력지대를 위한 전략

2) 광장을 위한 전략

유동인구가 많은 지대를 중심으로 열린 제스쳐를 취하고 건축가 없는 건축의 시선 유도의 이점을 이용한다.
건축가 없는 건축의 중간 영역에서의 체류의 이점을 적용하고 자연을 통해 편안한 분위기를 생성하여 사람들의 체류가 실제로 일어날 수 있도록 유도한다.
3) 환경적 전략

건축가 없는 건축의 환경적 전략을 통해, 가벼운 재료와 외부 차양을 적용한다. 환경에 대한 리서치를 통해 알게된 고정형 PV와 창문 부착형 BIPV를 더해, 더욱 에너지를 절약하는 방안을 만든다.
Detail Section

*도면은 기존 구조는 검정 계열로, 리노베이션 되어 새롭게 만들어진 구조는 붉은 계열로 표시하여 한 눈에 알아보기 쉽도록 표기하였다.
Perspective Section

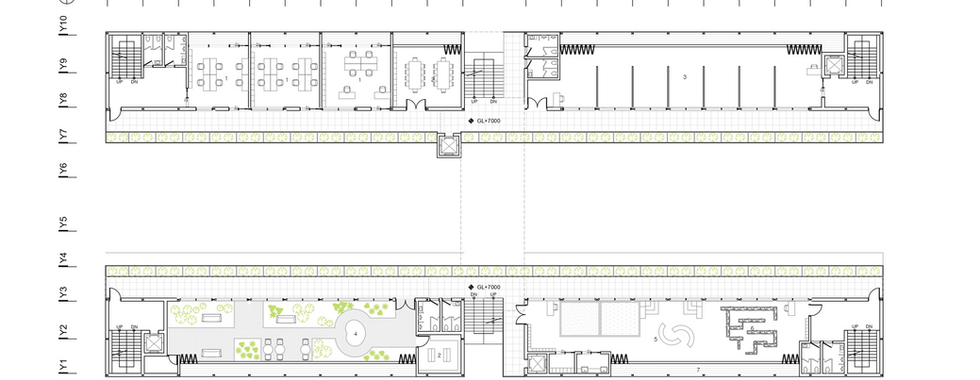
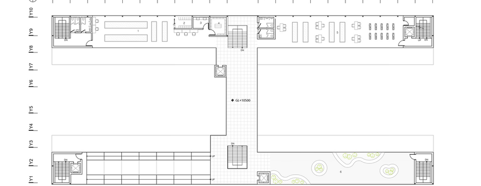
Floor Plan
<floor plan>
Elevation
<elevation>
Perspective View
<perspective view>
Software
Rhino, Auto CAD, Photoshop, Illustrator, Enscape
Image gallery
부산대학교 건축학과 학생의 작품에 관심을 가져주셔서 감사합니다.
궁금한 사항은 자유롭게 댓글(익명 가능) 또는 인스타 DM 이용해 주시면 감사하겠습니다.





























































































댓글