Urban Canopy
- pnu_archi_port

- 1월 11일
- 2분 분량
공공도서관
손정원 @dry_h.garden, 최서훈 @seo_hun56 / 건축설계스튜디오 III

Introduction
위치 : 부산광역시 부산진구 동천로 79
용도 : 공공 도서관
층수 : 지상 5층, 지하 1층
대지면적 : 4112.1 m²
건축면적 : 3365.7 m²
---------------------------------------------------------------------------------------------
Prologue
서면 부전 지역은 다양한 문화를 체험하려는 유동인구로 가득한 장소이다.
이 프로젝트는 사람들이 일상적으로 스쳐 지나가는 공간 속에서 도서관이 어떻게 관심을 끌고,
머무를 수 있는 장소가 될 수 있을지를 고민하며 설계되었다. 열린 경계와 유연한 동선을 통해 자연스럽게
사람들을 유입시키고, 책과 문화를 매개로 한 새로운 만남의 장을 제안한다.
Concept Sequence

시의 흐름과 맥락을 읽어네어 거시적인 스케일에서 출발한 동선과 공간 계획은 건축 내부로 들어서며
점차 사람 중심의 세밀한 스케일로 전환된다.

도시의 유동적인 흐름을 수용하는 열린 공용공지 공간은 외부에서 내부로 자연스럽게 연장되며,
사람들의 자발적인 유입과 소통을 유도한다.

건물 전면 마당에서부터 내부로 이어지는 동선에 음악적 요소를 더해
방문자가 자연스럽게 리듬을 타듯 공간을 경험하도록 유도한다.

건물 내부 동선의 끝자락에 위치한 아트월은 사용자의 시선을 자연스럽게 이끌며
공간의 중심이자 상징적인 마무리 요소로서 작용한다.
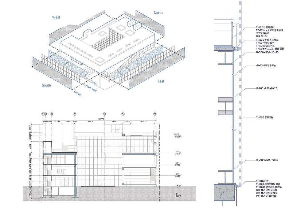
Circulation

GRAND STAIR는 단순한 이동 수단을 넘어 공간을 잇는 핵심 전이 요소다. 방문객은 음악 도서관의 감성이 담긴 그랜드 스테어를 오르며 시각적, 청각적 경험을 공유하고, 이 수직 동선을 통해 3층의 문화 및 전시 공간으로 자연스럽게 유입된다. 이는 외부의 활기찬 리듬이 끊기지 않고 건물 깊숙한 곳까지 이어지게 하는 건축적 장치이다.
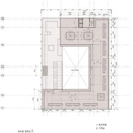
Plan
1층은 북카페, 어린이 도서관, 로비를 배치하여 남측 녹지 마당의 흐름을 내부로 확장한 열린 공간이다.
2층은 관리자 공간으로 기능을 분리하여 운영의 효율을 증대시켰다.
3층은문화 공간 및 전시실로 구성하여 시민들의 예술적 경험을 지원한다.
가장 상부인 4층은 도서관 본연의 기능을 수행하는 정적인 매스이며, 옥상에는 옥상 정원을 두어 1층에서 시작된 녹지의 흐름이 건물의 끝까지 연결되는 시퀀스를 기대한다.
Section
<section>
Structure

거대한 필로티 위에 도서관 매스를 띄워 도시를 위한 비워진 공간을 형성한다. 그 사이 발생한 하부의 열린
마당은 시민들의 자유로운 휴식처가 되며, 남측 녹지에서 시작된 조경 패턴은 건물 안까지 이어진다. 입면의 격자무늬는 빛을 조절하는 루버로 기능하며, 구조적 안정을 위한 truss 시스템을 이용한 구조적 특징을
이용해 캐노피를 이용한 조형미를 완성했다.
Perspective View
<perspective view>
Model
<model, section model>
Software
Rhino 8, Auto CAD, Illustrator
Image Gallery
부산대학교 건축학과 학생의 작품에 관심을 가져주셔서 감사합니다.
궁금한 사항은 자유롭게 댓글(익명 가능) 또는 인스타 DM 이용해 주시면 감사하겠습니다.























































































댓글